top of page
Dan Matthews, MFA
Assistant Professor of Theatre
Scenic Design, Lighting Design, Technical Direction
The Ohio State University at Lima
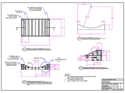
The Little Mermaid
Construction Drawings
Chicago Shakespeare Theater
Chicago, Illinois
Lyrics by Howard Ashman and Glenn Slater
Music by Alen Menken, Book by Doug Wright
Directed by Rachel Rockwell
Scenic Design by Scott Davis
May 2015
​
I conceived and drafted construction drawings for a rolling scenic piece meant to look like the deck of a sailing ship for a production of The Little Mermaid. The Scenic Designer's drawings were quite complicated and needed a good amount of inference in order to design a suitable structure. The structure had to be a mixture of steel and wood to accommodate the curved design of the ship. The resulting construction drawings were fully dimensioned and notated which allowed Chicago Shakespeare Theater's carpenters to build the unit off site without any further instruction.
​

bottom of page